|
|

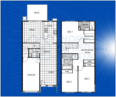
Click Plan to view in detail |
3 Bedroom + MPR
(B3 Design)
- 168m2
- Three bedrooms
- Multipurpose room on upper level
- Main bedroom with walk-in
wardrobe and ensuite
- Family bathroom with separate
bath and shower
- Separate internal laundry with
toilet
- Understair storage cupboard
- Single lock up garage
- Click on Plan to view Interiors
|
|
|
|

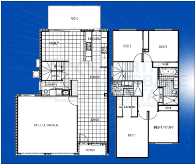
Click Plan to view in detail
|
3 Bedroom + MPR
(E4
Design)
- 162m2
- Three bedrooms plus lounge room
- Lounge area on second level
- Main bedroom with ensuite and walk-in
wardrobe
- Main bathroom with separate bath
and shower
- Internal laundry
- Separate toilet on lower level
- Understair storage cupboard
- Single lock up garage with
storage
- Click on Plan to view interiors
|
|
|
|

Click Plan to view in detail
|
3 Bedroom (H1
Design)
- 153m2
- Three bedrooms
- Main bedroom with ensuite and walk-in
wardrobe
- Main bathroom with separate bath
and shower
- Laundry in garage
- Separate toilet on lower level
- Understair storage cupboard
- Single lock up garage
- Click on Plan to view interiors
|
|
|

Click Plan to view in detail
|
4 Bedroom (DG6
Design)
- 188m2
- Four bedrooms
- Generous main bedroom with walk-in
wardrobe and ensuite
- Main bathroom with separate bath
and shower
- Separate internal laundry with
toilet
- Understair storage cupboard
- Double lock up garage
- Click on Plan to view Interiors
|
|
|

Click Plan to view in detail
|
4 Bedroom (B4
Design)
- Our largest townhouse - 203m2
- Four bedrooms
- Main bedroom walk through
wardrobe and ensuite
- Family bathroom with bath and
separate shower recess
- Separate internal laundry with
toilet
- Understair storage cupboard
- Double lock up garage with drive
through carport
- Click on Plan to view Interiors
|